Аларма на Мондео
-
GoTiaN4o
- потребител

- Мнения: 7
- Регистриран: 21 юни 2005, 22:52
- Модел на автомобила: Stara Zagora
- Местоположение: Ford Mondeo
- Status: Извън линия
Аларма на Мондео
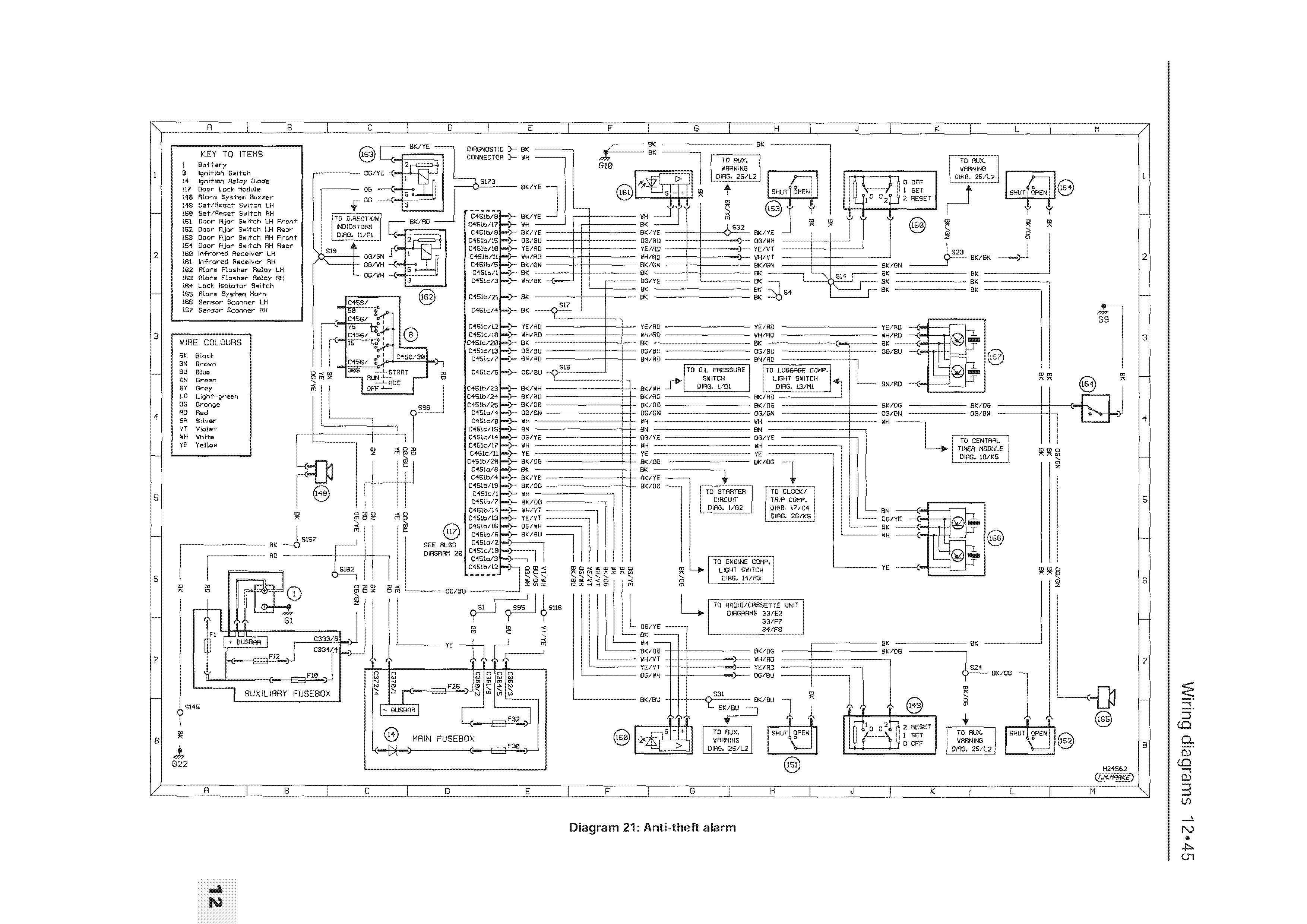
Значи казаха ми че алармата ми е от завода и ми трябва схемата аларамата се води GT 123.
Кой е на линия
Потребители, разглеждащи този форум: Няма регистрирани потребители и 21 госта
